石川町駅賃貸物件一覧

建物 22 棟 部屋 33
表示棟数:

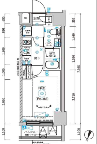
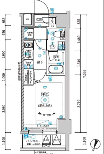
RELUXIA横濱元町 【04月18日更新】

新築/築浅

敷金ゼロ

賃料 8.9万円  ~  9.2万円 管理費 10,000円  ~  15,000円
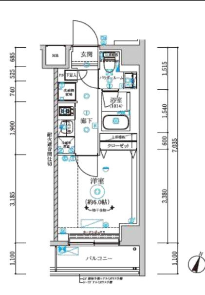
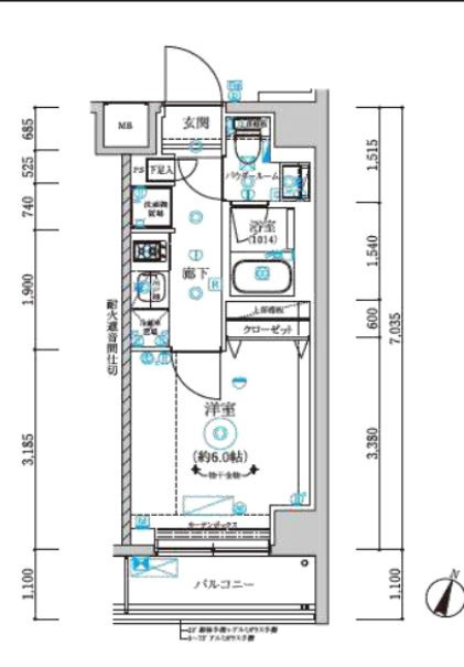
間取り 1K 面積 21.10m2
住所 神奈川県横浜市中区石川町4丁目158-14 築年月 2025年 7月
交通

京浜東北線石川町駅』徒歩5

ブルーライン伊勢佐木長者町駅』徒歩10

京浜東北線関内駅』徒歩13

間取り図 階数 間取り 面積 賃料 管理費 敷金 礼金 お気に入り お問合わせ
1K 7階 1K 21.1m2 90,000 15,000円 0.0ヶ月 1.0ヶ月
全ての空室情報を表示 その他-2 閉じる

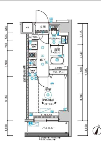
スカイコート横浜山手 【04月18日更新】

賃料 3.8万円  ~  4.5万円 管理費 3,000円  ~  8,000円
間取り 1R  ~  1K 面積 15.07m2
住所 神奈川県横浜市中区大和町1丁目5-2 築年月 1987年 6月
交通

京浜東北線山手駅』徒歩5

京浜東北線石川町駅』徒歩17

みなとみらい線元町・中華街駅』徒歩22

間取り図 階数 間取り 面積 賃料 管理費 敷金 礼金 お気に入り お問合わせ
1K 2階 1K 15.07m2 40,000 8,000円 1.0ヶ月 1.0ヶ月
全ての空室情報を表示 その他-2 閉じる
建物 22棟中  21~22棟表示
お気に入りに追加しました
お気に入りを解除しました
検索条件を保存しました
現在の検索条件
石川町駅
こだわりの条件
石川町駅
会社情報
株式会社ネクストライフ

株式会社ネクストライフ

営業時間:10:00~18:30

0120-955-199