相模大野駅賃貸物件一覧
建物 11 棟
部屋
28 室
表示棟数:
- 1
- 2
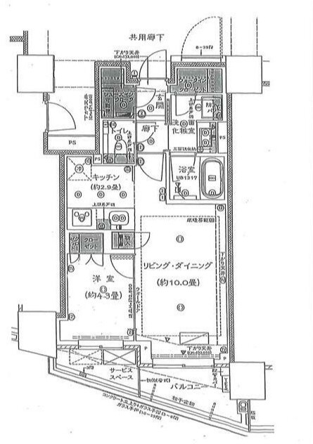
グラディート町田 【12月14日更新】
アーバンフラッツ町田 【12月14日更新】
日神パレステージ町田第2 【12月14日更新】
スカイコート町田 【12月14日更新】
建物
11棟中 1~10棟表示
- 1
- 2
お気に入りに追加しました
お気に入りを解除しました
検索条件を保存しました

