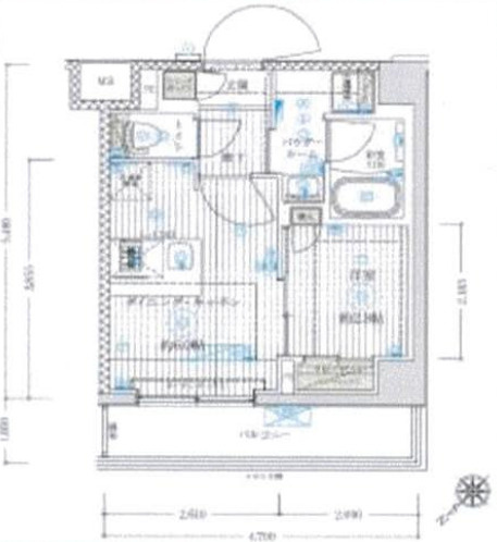
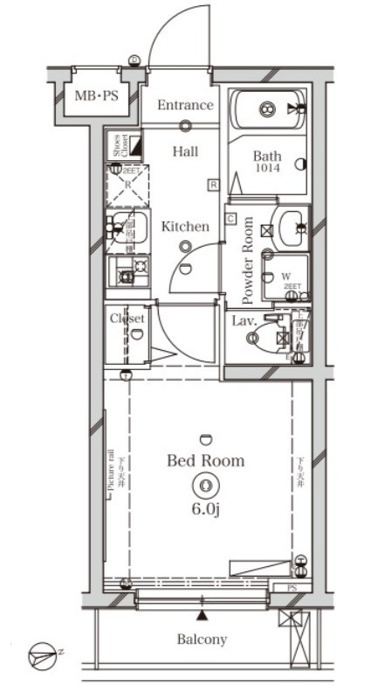
神奈川県川崎市宮前区賃貸物件一覧
建物 11 棟
部屋
12 室
表示棟数:
- 1
- 2
建物
11棟中 1~10棟表示
- 1
- 2
お気に入りに追加しました
お気に入りを解除しました
検索条件を保存しました

