3年以内賃貸物件一覧
建物 47 棟
部屋
183 室
表示棟数:
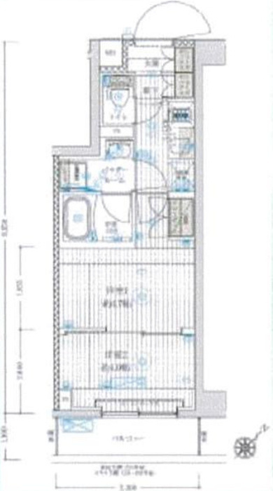
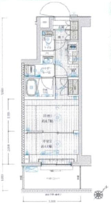
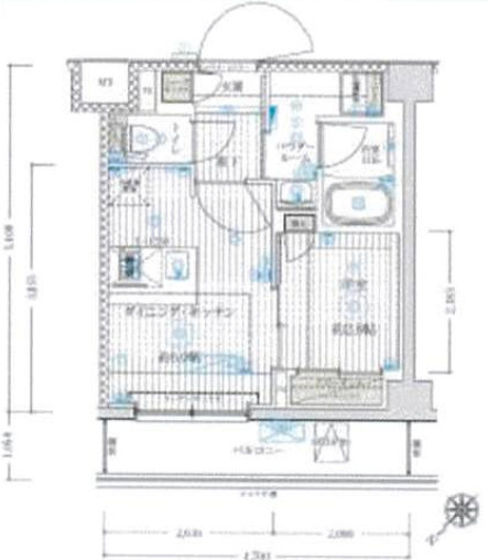
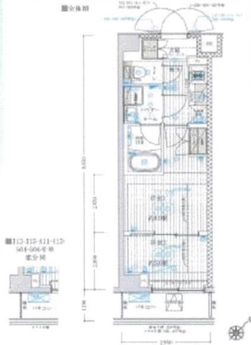
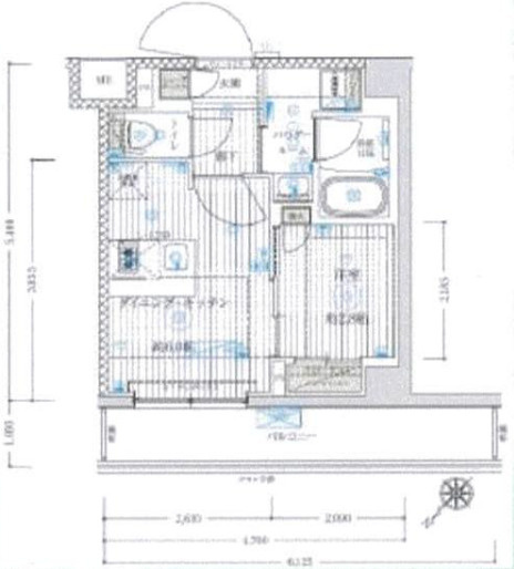
リテラス川崎ウエスト 【04月14日更新】
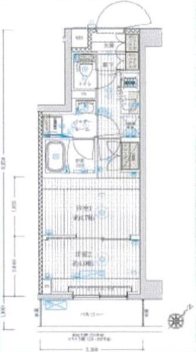
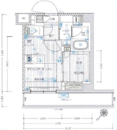
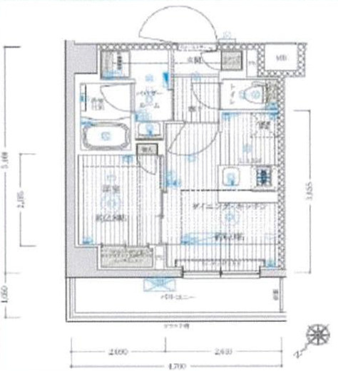
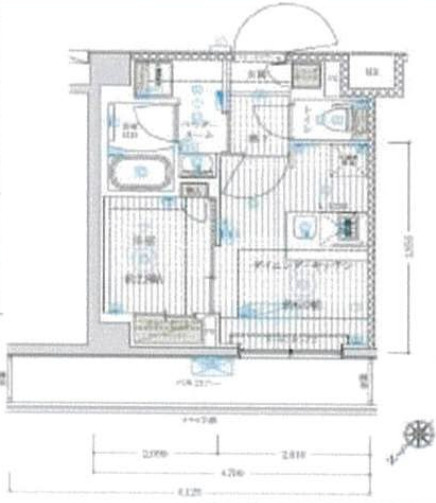
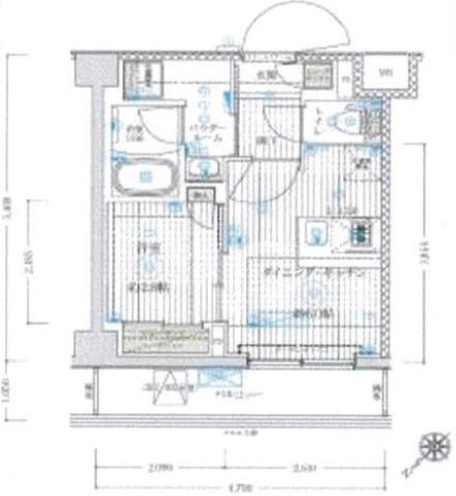
シーフォルム町田 【04月14日更新】
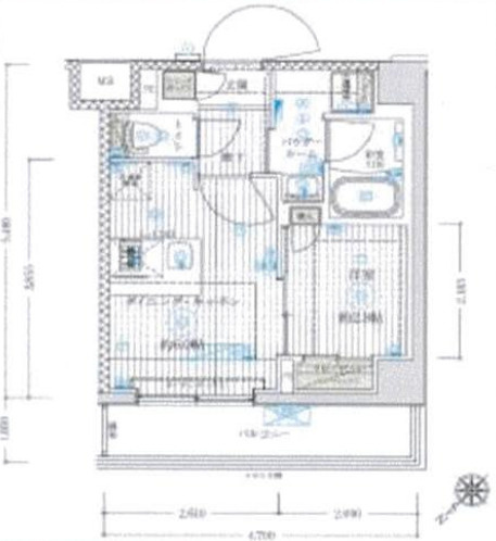
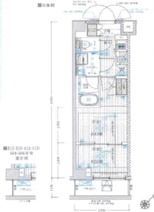
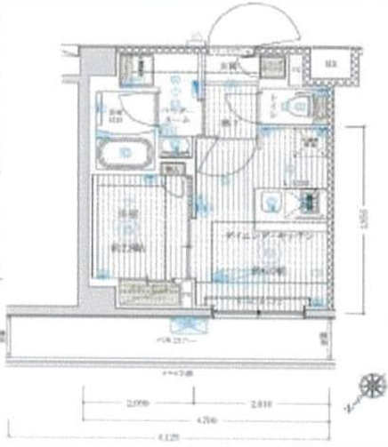
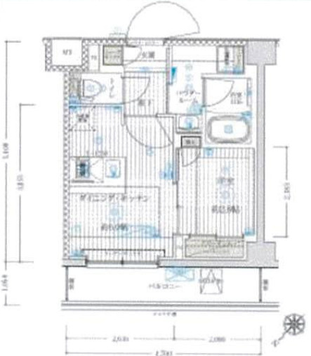
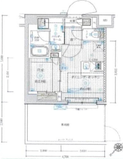
SHOKEN Residence川崎<東門前III> 【04月14日更新】
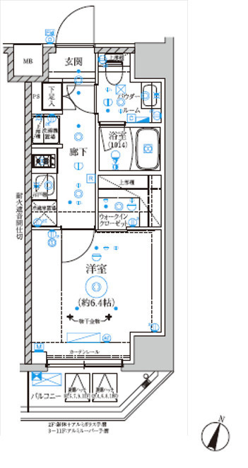
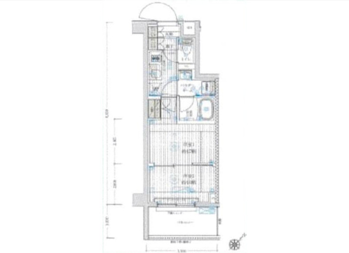
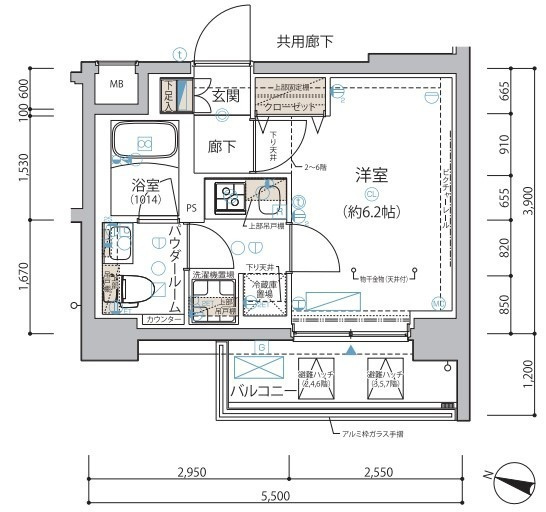
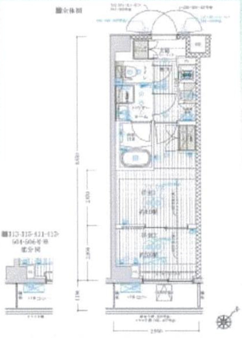
ピアース日吉 【04月14日更新】
お気に入りに追加しました
お気に入りを解除しました
検索条件を保存しました

