敷金なし/礼金なし賃貸物件一覧
建物 81 棟
部屋
116 室
表示棟数:
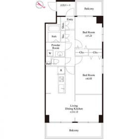
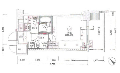
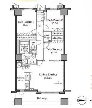
GSハイム山下町 【05月01日更新】
お気に入りに追加しました
お気に入りを解除しました
検索条件を保存しました

