神奈川県川崎市川崎区賃貸物件一覧
建物 46 棟
部屋
217 室
表示棟数:
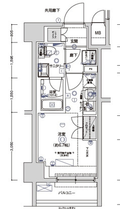
ARCOBALENO KAWASAKI 【05月31日更新】
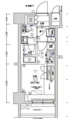
GENOVIA川崎II Skygarden 【05月31日更新】
お気に入りに追加しました
お気に入りを解除しました
検索条件を保存しました

