黄金町駅賃貸物件一覧
建物 30 棟
部屋
42 室
表示棟数:
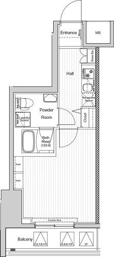
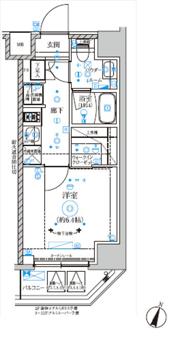
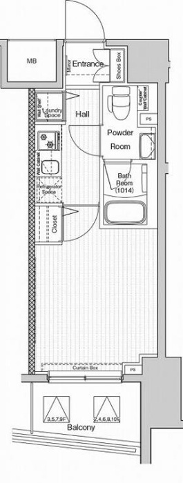
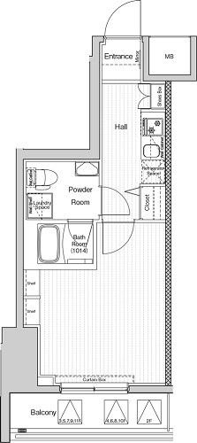
RELUXIA伊勢佐木長者町 【05月11日更新】
お気に入りに追加しました
お気に入りを解除しました
検索条件を保存しました

